Apartment Design in Yerevan

Project 08 - Interior design & Architecture

Project Overview

Location: Yerevan, Armenia
Area: 100 m²
Year: 2025
Client: Private
Project Type: Residential Interior Design
Status: In progress

Design Intent

The primary objective of this project is to create a calm and contemporary residential interior that supports everyday living while maintaining architectural clarity. The design emphasizes functional zoning, balanced proportions, and a restrained material palette that enhances spatial continuity. The interior is developed as a unified composition where every element contributes to the overall atmosphere of the apartment.
Residential interior design project in Yerevan by Ohanyan Ashot

Technical Tools & Workflow

Autodesk AutoCAD
Autodesk 3ds Max
Adobe Photoshop
Cororna
Concept development
Floor planning
Lighting planning
Technical documentation
The concept prioritizes clear organization of private and shared living space, visual harmony between architectural elements and furniture, material language that enhances natural light and spatial depth. The apartment layout was carefully developed to maximize usability while maintaining comfortable circulation between rooms. Functional areas were clearly defined while preserving visual openness and continuity across the interior.

A comprehensive lighting strategy was designed to support different activities throughout the apartment. The lighting plan integrates ambient, task, and accent lighting to create a balanced and adaptable interior atmosphere. A heated floor system was incorporated into the design to improve thermal comfort and maintain clean architectural lines without visible heating elements.

Material selection focuses on creating a refined yet durable interior environment. Finishes were chosen to complement the spatial concept while ensuring longevity and ease of maintenance.
Apartment design by Ashot OhanyanModern interior design in Yerevan
Apartment – residential interior project in Moscow, 76 square meters
Apartment – residential interior project in Moscow, 76 square meters
Living room sketch – residential interior project in Moscow, 76 square meters
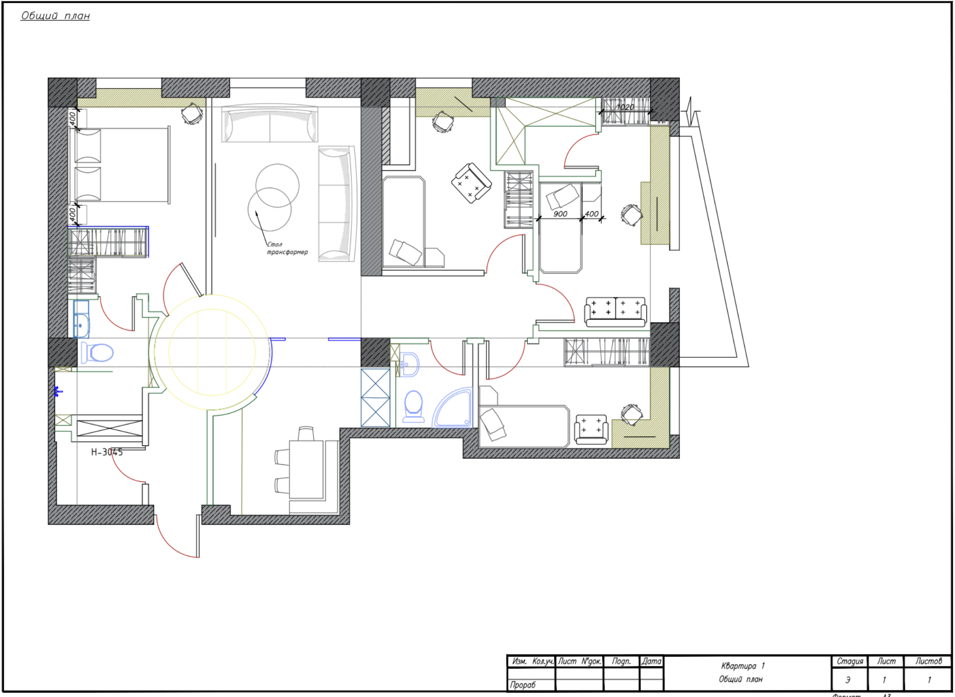
Apartment floor plan – residential interior project in Moscow, 76 square meters
100 square meter residential interior
Dininjg area - residential interior visualization
Kitchen - residential interior visualization
Bathroom - residential interior visualization

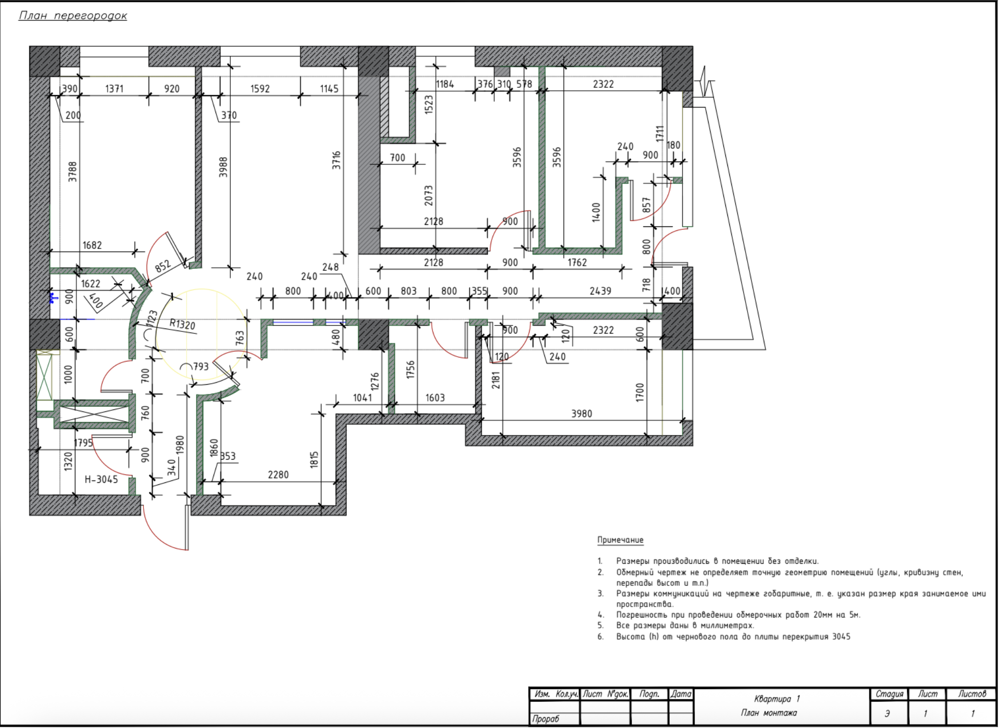
Architectural Drawings & Technical Coordination

The project includes a full set of technical drawings and documentation developed to guide the implementation process. These documents coordinate architectural elements, lighting systems, and interior details to ensure precise execution during construction.

The design concept was also explored through 3D visualization, allowing the client to clearly understand spatial relationships, materials, and lighting before construction.
Apartment floor plan – residential interior project in Moscow, 76 square meters
Apartment floor plan – residential interior project in Moscow, 76 square meters
Heated floor plan – residential interior project in Moscow, 76 square meters
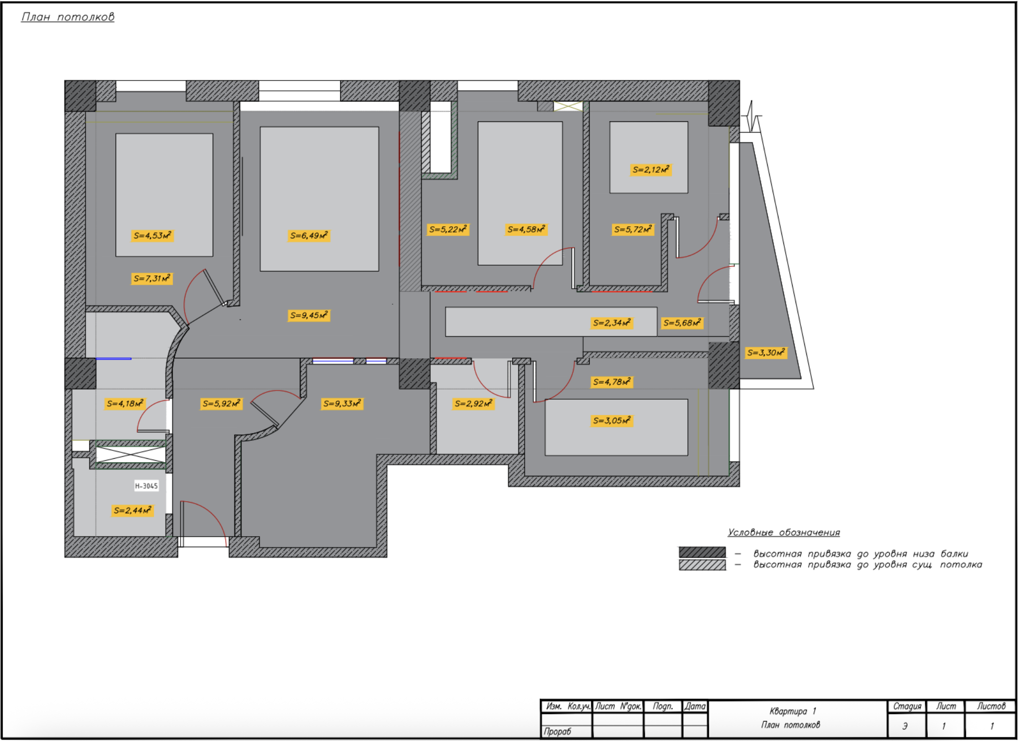
Apartment ceiling plan – residential interior project in Yerevan
Electricity plan for apartment project in Yerevan
Lighting plan for residential apartment in Yerevan by Ohanyan Ashot

hear from

clients

“Ashot restructured our apartment with remarkable precision, creating a layout and lighting concept that significantly improved the quality of our daily living.”

“Working with Ashot was inspiring — his vision turned our abstract idea into architecture that feels comfortable and beautifully connected to the landscape.”

“Ashot listened carefully to our needs and created an interior that feels calm, comfortable, and truly personal — exactly the kind of home we hoped for.”