Interior Design in Moscow

Project 10 - Interior Design

Project Overview

Location: Moscow, Russia
Area: 76 m²
Year: 2024
Client: Private
Project Type: Residential Interior Design
Status: Completed

Design Intent

The primary goal of this project was to create a calm and functional interior that responds to the daily needs of the client while maintaining a strong architectural identity. Particular attention was given to proportions, circulation, and the relationship between fixed elements and movable furniture. The design prioritizes clear zoning between private and shared areas, visual continuity across rooms, and a restrained material palette that enhances light and spatial depth.
Residential interior design project in Moscow by Ohanyan Ashot

Technical Tools & Workflow

Autodesk AutoCAD
Autodesk 3ds Max
Adobe Photoshop
Cororna
SketchUp
The primary goal of this project was to create a calm and functional interior that responds to the daily needs of the client while maintaining a strong architectural identity. Particular attention was given to proportions, circulation, and the relationship between fixed elements and movable furniture. The design prioritizes clear zoning between private and shared areas, visual continuity across rooms, and a restrained material palette that enhances light and spatial depth.

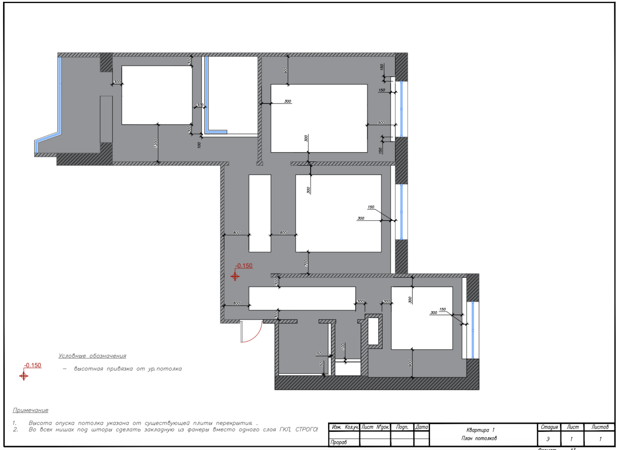
The apartment layout was carefully reworked to maximize usable space without compromising comfort. Functional zones were clearly defined while maintaining openness and visual flow throughout the interior. A layered lighting strategy was developed to support different moods and activities.

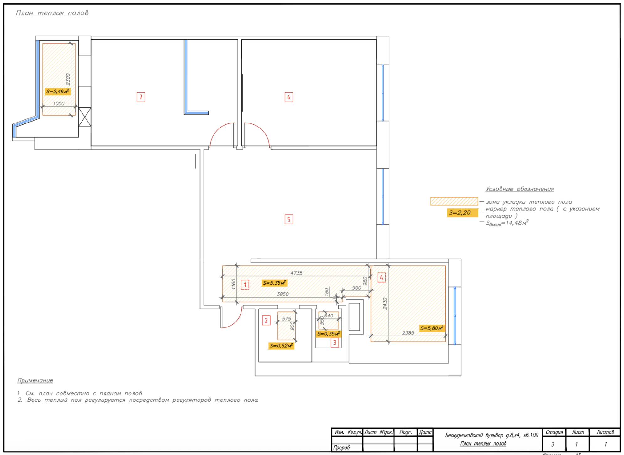
The lighting plan combines ambient, task, and accent lighting to enhance architectural elements and create a warm, balanced atmosphere. A heated floor scheme was integrated into the design to ensure thermal comfort without visually disrupting the interior.
Modern apartment living area with integrated lighting design76 square meter apartment interior with furniture layout
Apartment sketch – residential interior project in Moscow, 76 square meters
Living room sketch – residential interior project in Moscow, 76 square meters
Apartment floor plan – residential interior project in Moscow, 76 square meters
Sketch view  – residential interior project in Moscow, 76 square meters

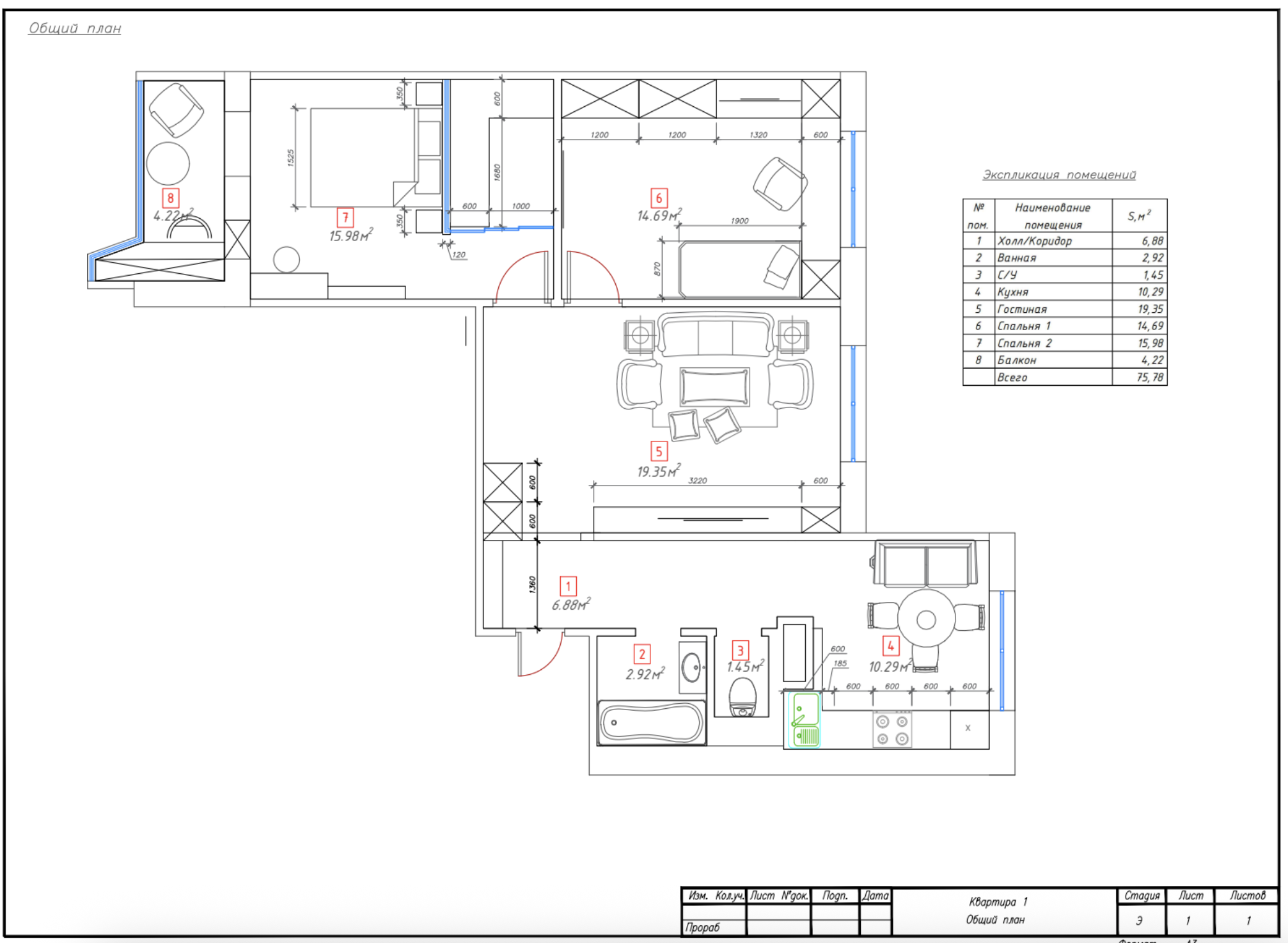
Architectural Drawings & Technical Coordination

The interior design was developed through a complete set of architectural and technical drawings that ensured clarity, accuracy, and consistency throughout the project. These included detailed layout plans defining spatial organization and furniture placement, a coordinated heated floor plan aligned with functional zones and finish materials, as well as ceiling and lighting plans integrating fixtures and technical elements.

Together, this documentation formed a coherent technical framework that translated design intent into a precise and build-ready solution.
Apartment floor plan – residential interior project in Moscow, 76 square meters
Apartment floor plan – residential interior project in Moscow, 76 square meters
Heated floor plan – residential interior project in Moscow, 76 square meters
Apartment ceiling plan – residential interior project in Moscow, 76 square meters
Electricity plan – residential interior project in Moscow, 76 square meters

hear from

clients

“Ashot restructured our apartment with remarkable precision, creating a layout and lighting concept that significantly improved the quality of our daily living.”

“Working with Ashot was inspiring — his vision turned our abstract idea into architecture that feels comfortable and beautifully connected to the landscape.”

“Ashot listened carefully to our needs and created an interior that feels calm, comfortable, and truly personal — exactly the kind of home we hoped for.”