Lazarevskoe Apartment Design

Project 04 - Interior Design

Project Overview

Location: Lazarevskoe, Russia
Area:
128 m²
Year:
2022
Client:
Private
Project Type:
Residential Interior
Status:
Realized

Design Approach

The design strategy aimed to establish an interior that feels structured yet relaxed, allowing different functional zones of the apartment to interact naturally. The project prioritizes spatial continuity, calm proportions, and a restrained palette of materials that enhance natural light throughout the interior. Each design element contributes to a coherent interior composition that supports both everyday use and visual harmony.
Modern residential interior design in Lazarevskoe

Technical Tools & Workflow

Autodesk AutoCAD
Autodesk 3ds Max
Adobe Photoshop
Cororna
SketchUp
Concept development
Technical documentation
Layout Planning
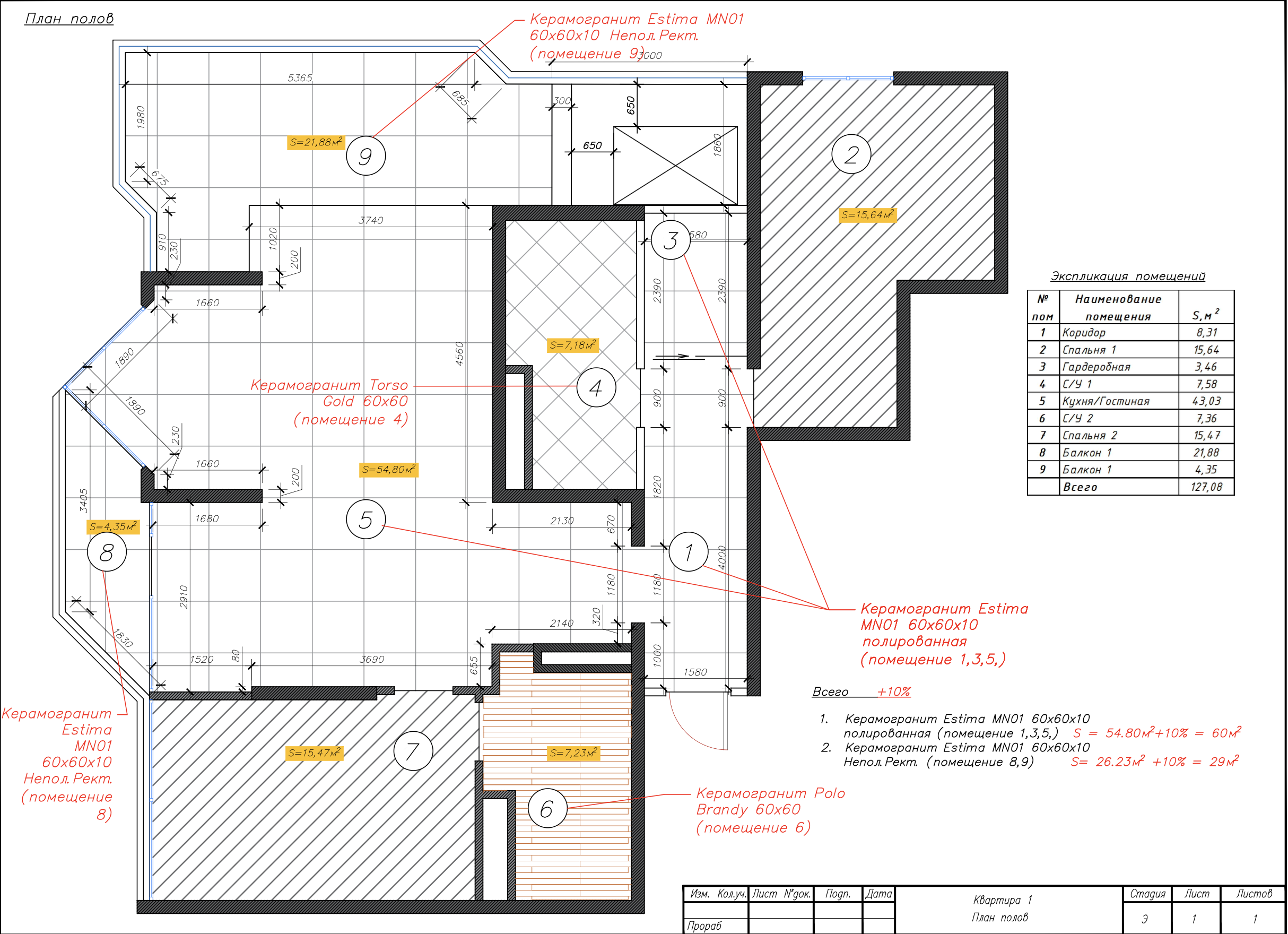
The floor plan was carefully organized to improve circulation between rooms and optimize the use of the available area. Functional zones were positioned to support daily routines while maintaining a comfortable sense of openness.

Lighting was treated as a central element of the interior environment. The lighting plan combines general illumination with localized light sources that help define spatial zones and emphasize architectural surfaces. A heated floor system was incorporated into the design to ensure consistent thermal comfort while preserving clean architectural lines without visible heating components.

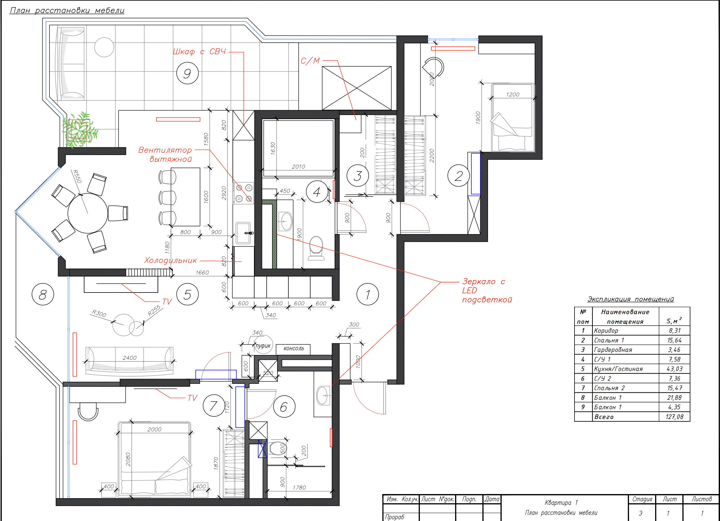
Furniture arrangement was coordinated with the architectural layout to reinforce spatial clarity and maintain comfortable movement throughout the apartment. Each element was selected to complement the proportions of the space and support the overall interior atmosphere.
Modern apartment living area with integrated lighting design in RussiaLazarevskoe apartment interior design project in RussiaModern apartment dining area in RussiaLazarevskoe apartment kitchen interior design
Residential interior project - master bedroom
Residential interior project - master bathroom
Residential interior project - bedroom interior
Residential interior project - main bathroom
Modern residential interior design - balcony with hot tub

Architectural Drawings & Technical Coordination

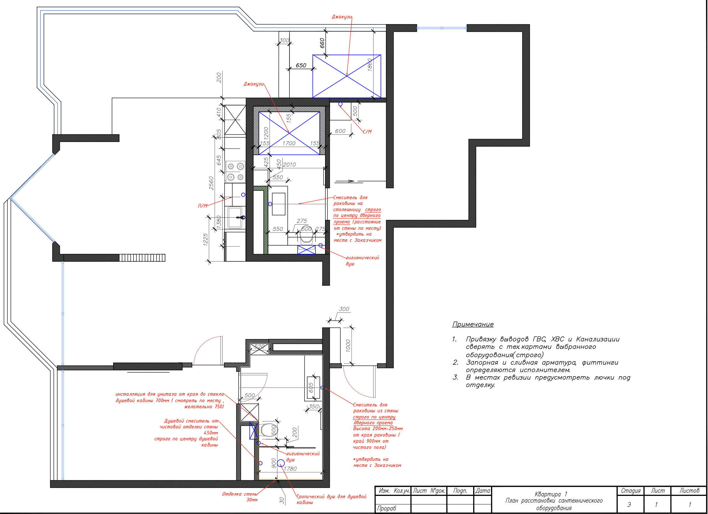
The project included a full set of technical drawings and construction documentation, covering layout planning, lighting coordination, and interior detailing. These materials supported the accurate implementation of the design during construction.

To assist the client during the design process, the project was also developed through 3D visualization, allowing the spatial qualities, materials, and lighting scenarios to be clearly understood before realization.
Apartment sketch – residential interior project in Russia
Dining and kitchen area sketch - interior design in Lazarevskoe
Master bedroom sketch by Ashot Ohanyan
Lazarevskoe apartment - bedroom interior design sketch
Furniture layout plan – interior design project in Lazarevskoe
Floor plan – interior design project in Lazarevskoe
Apartment floor plan – interior design project in Lazarevskoe
Lighting layout plan – interior design project in Lazarevskoe
Master bedroom diagram – interior design project in Lazarevskoe
Bedroom diagram – interior design project in Lazarevskoe