Ptkes-Berk Monastery Restoration

Project 07 - Restoration Architecture

Project Overview

Location: Artsakh
Area:
~800 m²
Year:
2018
Client:
Public
Project Type:
Restoration Architecture
Status:
On hold

Architectural Strategy

The project is grounded in a restoration strategy that prioritizes the preservation of historical integrity while introducing clear and minimal architectural interventions where necessary. Rather than imposing new forms, the approach focuses on understanding and reinforcing the existing spatial and structural logic of the monastery.
Ptkes-Berk Monastery restoration project in Artsakh

Analysis & Documentation

Concept development
Architectural strategy
Architectural drawings
Technical Layouts
Spatial analysis
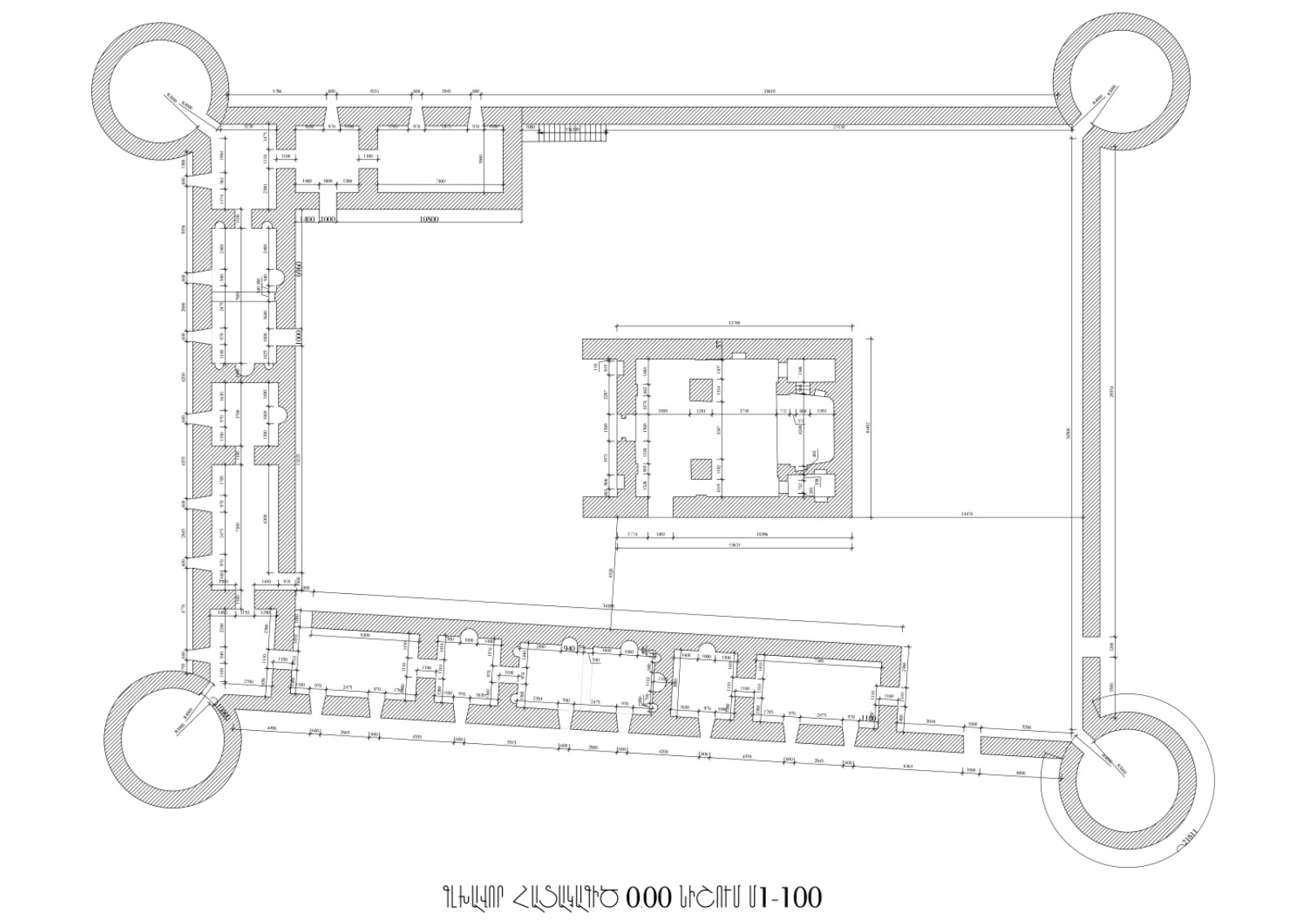
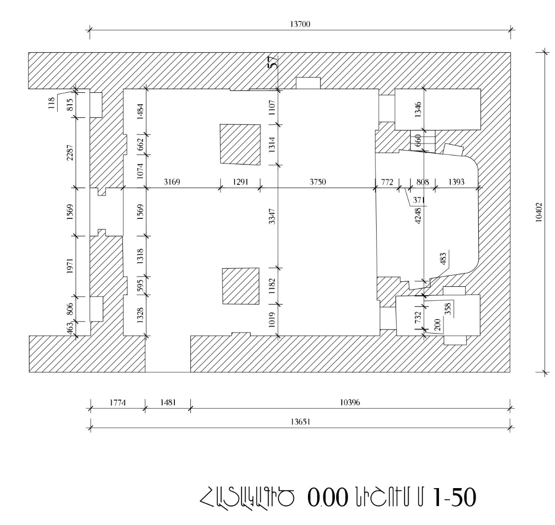
Detailed architectural diagrams and spatial studies were developed to document the current condition of the monastery and understand its structural and spatial organization. These analyses informed all subsequent design decisions. Technical layouts were prepared to address structural stabilization, circulation, and functional use of the complex. The goal was to ensure that all proposed interventions remain consistent with both preservation requirements and practical considerations.

The strategy emphasizes continuity, ensuring that restoration work remains aligned with the historical context of the site.Key principles guiding the project include:

- Respect for original architectural elements and construction techniques
- Careful distinction between existing structures and proposed interventions
- Preservation of spatial character and cultural significance
Ptkes-Berk Monastery restoration project
Architectural restoration drawings of historic monasteryArchitectural restoration of historic monastery
Monastery restoration documentation
Monastery restoration images
Stone carving in Ptkes-Berk
Stone Carvings - restoration project in Artsakh
Architectural restoration drawings of monastery by OA
Architectural restoration drawings of Ptkes Berk
Monastery restoration technical plans and documentation
Monastery restoration technical plans by OA

Architectural Drawings & Technical Coordination

A comprehensive set of architectural drawings and technical plans was produced to guide the restoration process. This documentation includes detailed plans, sections, and coordination drawings necessary for accurate implementation.All materials were prepared as part of a full technical documentation package, supporting future restoration phases and facilitating coordination with relevant authorities and specialists.
Stone writings documented in Ptkes-Berk Heritage architecture project in Artsakh
Heritage architecture - technical plans
Heritage architecture - technical drawings
Spatial analysis view - diagrams of heritage architecture project
Sketch view  – heritage architecture project

hear from

clients

“Ashot restructured our apartment with remarkable precision, creating a layout and lighting concept that significantly improved the quality of our daily living.”

“Working with Ashot was inspiring — his vision turned our abstract idea into architecture that feels comfortable and beautifully connected to the landscape.”

“Ashot listened carefully to our needs and created an interior that feels calm, comfortable, and truly personal — exactly the kind of home we hoped for.”