Restoration Project in Yakutia

Project 05 - Restoration Architecture

Project Overview

Location: Yakutia
Area: 1,800 m²
Year: 2024
Client: Draznik
Project Type: Restoration Architecture
Status: In progress

Architectural Concept & Strategy

The core objective of the project is to restore and reinterpret the existing structure through a clear architectural strategy. Rather than replicating historical elements, the design emphasizes legibility between old and new, allowing each layer of the building’s evolution to remain readable. The design process prioritizes long-term adaptability and structural logic, ensuring that restoration decisions are both technically sound and architecturally consistent.
Architectural restoration project in Yakutia by Ohanyan Ashot

Technical Tools & Workflow

Autodesk AutoCAD
Autodesk 3ds Max
Architectural drawings
Technical plans
Concept development
The project focuses on preserving architectural integrity while adapting the structure to contemporary functional and technical standards. The approach balances respect for the existing building fabric with clear architectural interventions, ensuring long-term usability, structural clarity, and technical coherence within a challenging climatic context.

The apartment layout was carefully reworked to maximize usable space without compromising comfort. Functional zones were clearly defined while maintaining openness and visual flow throughout the interior. A layered lighting strategy was developed to support different moods and activities.
Restoration project in Yakutia by Ohanyan AshotFacade view of restoration project in Yakutia Facade view of restoration project in Yakutia
Restoration - state of project site
State of project site before restoration
Restoration architecture - current state of project site
Restoration architecture - before reconstruction
Restoration architecture - project site before

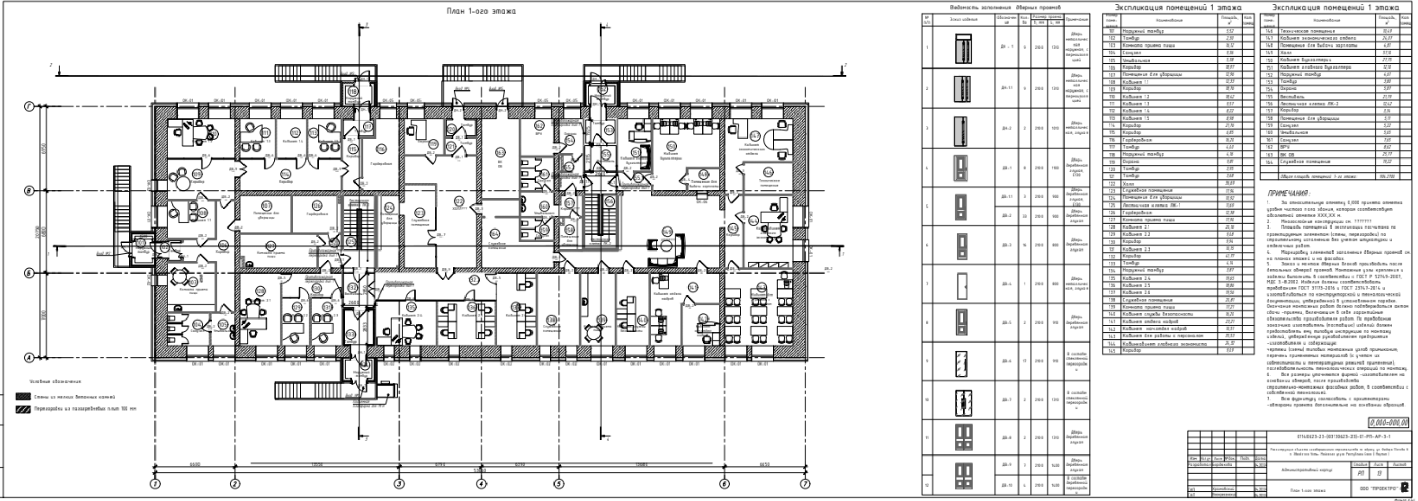
Architectural Drawings & Technical Documentation

A full set of architectural drawings and technical plans was developed to support the restoration process. Special attention was given to construction detailing, coordination between disciplines, and clarity of documentation, ensuring accurate implementation on site.All technical solutions were developed with consideration for Yakutia’s demanding environmental conditions, prioritizing robustness, longevity, and performance.
Technical architectural drawings for large-scale restoration project
Technical drawings for restoration project
Facade drawing of restoration project
Technical drawing of walls for restoration project

hear from

clients

“Ashot restructured our apartment with remarkable precision, creating a layout and lighting concept that significantly improved the quality of our daily living.”

“Working with Ashot was inspiring — his vision turned our abstract idea into architecture that feels comfortable and beautifully connected to the landscape.”

“Ashot listened carefully to our needs and created an interior that feels calm, comfortable, and truly personal — exactly the kind of home we hoped for.”